Развернуть карту

Наро-Фоминск, 3-х комнатная квартира, 1-я Кривоносовская д.17А, 8750000 руб.

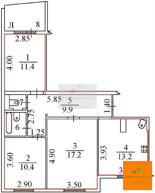
  • Общая площадь, м²66.0
  • Этаж1 из 3
  • Тип комнатраздельные
  • Комнат3
  • Площадь комнат участвующих в сделке, м²39
  • Жилая площадь, м²39.0
  • Кухня, м²13.2
  • Состояние ремонтаевро-ремонт
  • Тип домаПанельный
  • Статуссвободна
Адрес: Подмосковье, Наро-Фоминский район, Наро-Фоминск, 1-я Кривоносовская, 17А

id:189.

Продаётся уютная и светлая трёхкомнатная квартира в Привокзальном микрорайоне города Наро-Фоминск. Квартира расположена на первом этаже трёхэтажного панельного дома и имеет общую площадь 66 кв. м.

В квартире три изолированные комнаты площадью 17,2 кв. м, 11,4 кв. м и 10,4 кв. м — идеальное пространство для всей семьи. Большая кухня площадью 13,2 кв. м станет местом, где можно готовить с удовольствием и собирать за столом близких. Также в квартире есть раздельный санузел и просторная застеклённая лоджия, где можно устроить зону отдыха или небольшой зелёный уголок.

Квартира полностью готова к проживанию: выполнен свежий и качественный ремонт, она меблирована и оснащена необходимой техникой. Всё это останется новым владельцам — можно сразу заселяться и наслаждаться комфортом нового жилья.

Район с хорошо развитой инфраструктурой: до ближайшего детского сада всего 340 метров (3 минуты ходьбы), до школы — 1,62 км (20 минут пешком), а до железнодорожной станции «Нара» — 1,22 км (15 минут ходьбы). На общественном транспорте можно добраться до Киевского вокзала и метро «Саларьево» примерно за час. Удобный выезд на Киевское шоссе позволит быстро добраться до Москвы — расстояние до МКАД составляет 55 км.

Стоимость квартиры —. Два взрослых собственника. Квартира находится в ипотеке, но есть возможность закрыть долг перед продажей или переоформить ипотеку на нового владельца с сохранением текущей процентной ставки. Это отличная возможность стать владельцем комфортного жилья в спокойном районе с хорошей транспортной доступностью...
```



8750000 руб. | 132559 $ | 116168 €

Антон Левин

+7 (993) 928-01-59

Добавлено: 07 Oct 2025, 01:20:33


За те же деньги